Descripción
El sistema deslizante con hojas altas plegables garantiza una protección eficaz y es una solución elegante y original para su proyecto de control de paso.
Las opciones de personalización permiten que se integren a la perfección con el entorno existente de centros de oficinas, bancos y otras instituciones.
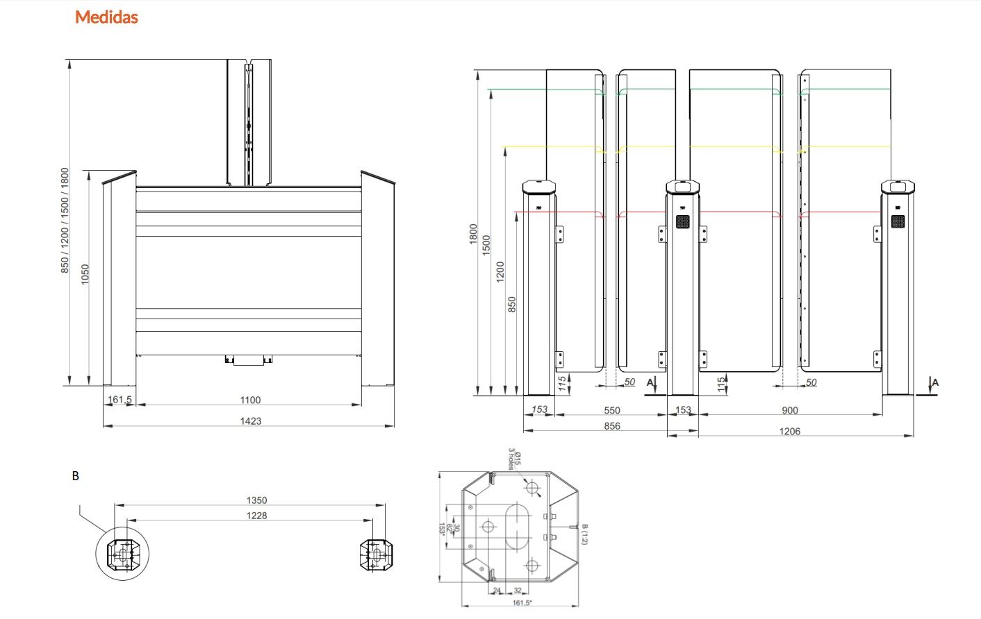
La altura de las hojas elimina la posibilidad de paso no autorizado y ayuda a evitar la transferencia de cualquier objeto por encima de las puertas, así como saltar por encima del mueble.
El acceso se puede controlar mediante una variedad de medidas que incluyen lectores de tarjetas, biometría o mediante una botonera de control manual.
Ventajas
- BMDrive® Mecanismo con motor de engranajes BLDC que garantiza un funcionamiento sin mantenimiento.
- Sistema de bloqueo FoldEmLock® evita que las hojas se abran manualmente.
- BMDrive® analiza automáticamente el sistema, detecta fallos críticos.
- Diagnóstico mediante USB y un software de servicio con S. O. Windows.
- Control digital de la fuerza y la velocidad de la hoja y sensores de presencia.
- Alta velocidad de apertura/cierre de la hoja entre 0,7 y 1 segundo.
- Integrable con cualquier tipo de sistema de control de accesos.
Estándar
Mueble INOX, acabados laterales y superior en cristal negro. Pictogramas frontales y superiores, tiras de leds tricolor, cristal con franjas luminosas y botonera de control externa.



Ficha técnica del producto 




